97%
3%
|
软件类型 聊天交友 |
软件大小 52.81MB |
更新时间 2025-12-12 16:05:09 |
|
软件版本 v3.4.1 |
隐私说明 点击查看 |
游戏权限 点击查看 |
|
MD5值 9a11ea644030f1e05fb48aa03dffd29d |
系统要求 9.0或者更高版本 |
软件排行榜单
+挽念虚拟机免费版
v12.0
1018.7MB /
实用工具
查看解剖大师
v4.3.1
622.49MB /
便捷生活
查看挽念虚拟机
v16.0
701.3MB /
实用工具
查看晓秀最新版
V5.5.0
553.39MB /
影音视听
查看第五人格国际服正版
v6.0-2438415
1924.86MB /
聊天交友
查看PS2模拟器
Valpha-1370
1.3GB /
实用工具
查看准星大师
V9.1.5.02
8.5MB /
聊天交友
查看莫塔之子汉化补丁
v1.0
1102.48MB /
聊天交友
查看植物大战僵尸2
v3.5
925.97MB /
聊天交友
查看战舰世界闪击战最新版
V3.4.0
1879.07MB /
聊天交友
查看同类软件
更多游戏介绍
苏州浩辰软件股份有限公司开发的CAD手机看图免费版,是一款专业的图纸查看工具平台。它具备全格式文件解析能力与精准编辑工具支持,用户可在手机上轻松打开、浏览复杂设计图纸,原文件的图层、布局及标注信息均能完整保留,助力CAD看图办公更便捷高效。此外,该应用还支持直接在图纸上快速测算长度与面积,用户可用不同颜色记号圈阅重点,清晰记录每一处图纸细节,进一步提升办公效率与质量。
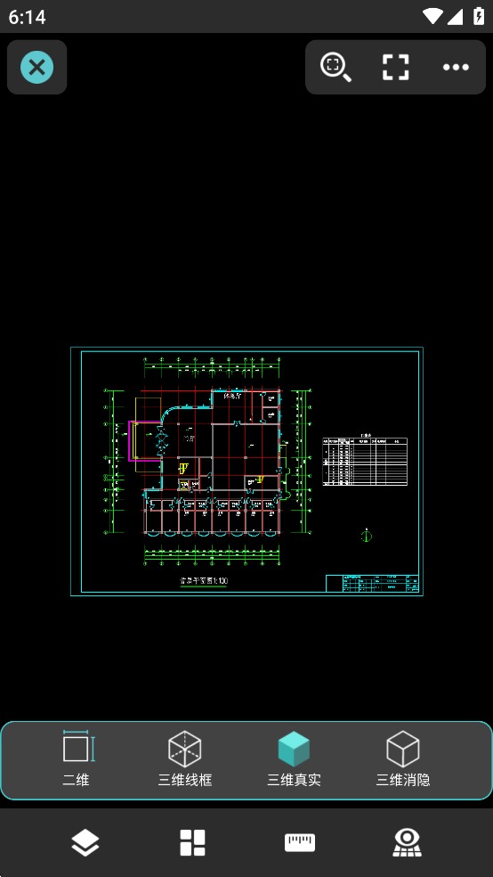
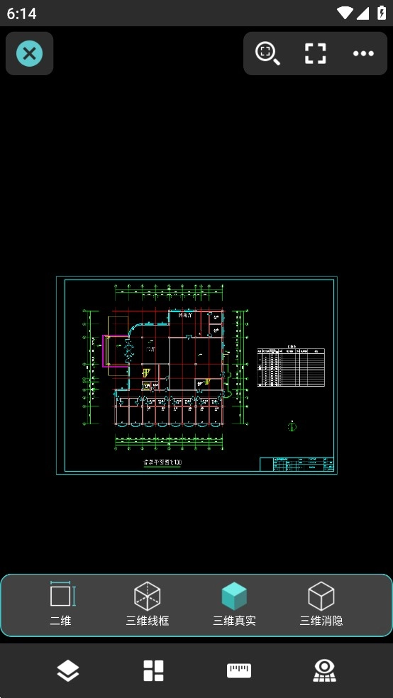
CAD手机看图界面及功能介绍
一、界面
二、功能
1、全图:显示全图。
2、全屏:显示全屏。
3、更多:点击可选择文件信息,帮助,历史记录,设置选项。
4、图层:显示DWG文件所有图层,可开启或关闭选定图层。
5、布局:切换任意模型或布局空间。
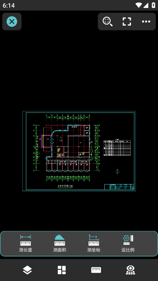
6、测量:包括测长度,测面积,测坐标,设比例。
7、视觉样式:支持二维和三维视觉样式切换。
CAD手机看图免费版软件功能
1、快速高效,可极速浏览AutoCAD、天正建筑、浩辰CAD等各类CAD图纸;
2、完美显示效果,创新云字体技术精准呈现CAD图纸信息,彻底摆脱乱码烦恼;
3、绘图工具具备真正的CAD图纸绘制、测量、标注、搜索、捕捉等编辑功能;
4、支持一键同步功能,提供多种网盘选项,让您能在手机、平板或电脑等设备上随时保存和同步CAD图纸。
5、即时反馈,专业CAD客服在线答疑、快速反馈。
1、能够不受时间地点限制,借助微信、QQ、邮件等方式开展CAD图纸的交互与分享,还可以把DWG格式转换为PDF和图片格式。
2、支持百度网盘、Dropbox、OneDrive等云存储服务,能够在手机、平板与PC端之间同步文件,并且可以协同编辑DWG图纸。
3、该软件在建筑领域(涵盖暖通、给排水、电力、电气、结构、预算、园林等专业方向)、机械行业(包括加工、机床、钢格板等细分领域)以及装饰装修、工程施工等多个行业场景中均已实现广泛应用,并且先后斩获年度推荐移动看图软件、最佳效率办公软件等多项行业荣誉奖项。
4、构建设计领域的“办公利器”,革新建筑与机械工程师的工作模式,告别CAD纸质图纸时代,让非专业人士也能轻松查看dwg图纸。
1、可以将您的cad图纸保存到网盘中;
2、您可以在有网络的地方需要使用的cad图纸;
3、使用可以对图纸进行简单的测量;
4、将图纸的信息快的分享给工作好友;
5、您也可以在中对图纸进行简单的标注;
6、快速的搜索到自己小的图纸信息;
【毫厘毕现】
精准显示CAD及天正等格式图纸
【触手可及】
掌上设备的CAD图纸浏览
【轻松分享】
云盘存储,第三方分享图纸
更新日志
v3.4.1版本
1、支持天正T20V10格式;
2、适配安卓16系统。
游戏截图
相关攻略
更多
2026-05-04 10:00:08
2026-05-04 09:45:06
2026-05-04 09:30:08
2026-05-04 09:15:05
2026-05-04 09:00:08
2026-05-03 10:00:08
游戏评论
我要评论评价
具体建议内容
请输入验证码